| 乐动(中国)基本信息 | |
| 编号 | FC00024349 |
|---|---|
| 名称 | 平潭68海鲜码头餐厅出租 |
| 挂牌价 | 详见乐动网页版登录入口 |
| 保证金 | 详见乐动网页版登录入口 |
| 挂牌开始日期 | 2023-09-13 |
| 挂牌结束日期 | 2023-09-26 |
| 是否延牌 | 是 |
| 联系人 | 曹先生 |
| 联系电话 | 0591-87838902 |
| 地址 | 福州市湖东路152号中山大厦A座22层 |
| 发布机构 | 乐动网页版登录入口 |
一、租赁内容
1.1.租赁标的基本情况:租赁标的及挂牌价详见“租赁标的物基本情况表”。
租赁标的物基本情况表
|
租赁标的 |
乐动(中国)位置 |
挂牌价(元/年) |
建筑面积(约平方米) |
租赁期限 |
|
平潭68海鲜码头餐厅 |
平潭综合实验区海坛片区澳前镇东澳村68小镇澳前码头 |
485000 |
957.41 |
5年 |
1.1.1.平潭68海鲜码头餐厅以“蓝眼泪”“渔港”为设计灵感,通体为克莱茵蓝的墙面,层数为地上二层,结构体系为钢结构,建筑耐火等级二级。建筑高度约10.9米,建筑面积约957.41平方米,其中,一楼面积约663.87平方米,二楼面积约293.54平方米;二楼露天面积约323平方米。
1.1.2.租赁标的所在位置:


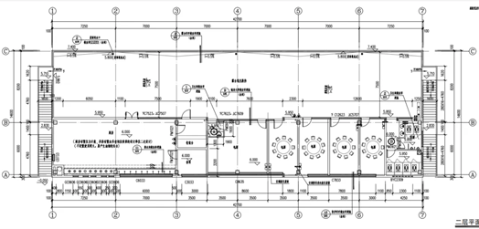
1.1.3.租赁标的平面图:
一层平面图

二层平面图

1.1.4.租赁标的属平潭旅游运营管理有限公司所有。租赁标的以现状为准,租赁标的所在土地使用权为福州东澳中心渔港建设管理有限公司所有,尚未办理不动产权证。租赁标的不存在抵押、担保情况。
1.1.5.租赁用途:餐饮经营使用。承租期间,届时若受市场状况影响或遇政府对该乐动(中国)标的另有规划定位,承租方须无条件服从,并将有关运营方案提报至出租方,经审批后,方能改变标的用途。若非,在租赁期内未征得出租方书面同意,不得擅自改变标的物的使用用途。
1.2.租赁期限及租金递增方式:整体出租,租赁期限5年。具体承租起止日以《68海鲜码头餐厅租赁合同》约定为准。竞价成交金额为第一年年租金,第二年年租金与第一年年租金一致,从第三年(含第三年)起租金每两年在上一年年租金的基础上按首年年租金的5%递增。
|
租金缴交信息表 |
||
|
租期 |
租金 |
|
|
5年 |
第一年 |
竞价成交价-免租期租金 |
|
第二年 |
竞价成交价 |
|
|
第三年 |
竞价成交价*5%+第二年年租金 |
|
|
第四年 |
竞价成交价*5%+第二年年租金 |
|
|
第五年 |
竞价成交价*5%+第四年年租金 |
|
1.3.租金支付方式及押金标准:
1.3.1.付款方式:按季度支付原则。承租方自《68海鲜码头餐厅租赁合同》签订之日起7日内支付首季度租金。并在每季度末月底前15日内支付下一季度租金。
1.3.2.履约保证金:承租方须在《68海鲜码头餐厅租赁合同》签订后2个工作日内向出租方交付首年一个季度的租金作为履约保证金。
1.4.免租金装修培育期:首年前2个月(包含在5年租赁期限内)。
1.5.挂牌价:485000元,挂牌价为第一年租金起始价。
1.6.风险提示:
1.6.1.该标的物未取得消防验收备案。运营期间,承租方须自行完善消防安全条件所需的其他设备设施,并自愿承担该标的物的现状及可能存在的风险。
1.6.2.该标的土地使用权剩余三年到期。标的物未取得房屋不动产权证,为出租方建设,标的物用地为出租方租赁使用,租赁期截止至2027年4月30日,用地租赁期满后,出租方负责后续用地租赁相关续约事宜,用地租金由出租方承担。
1.6.3.租赁标的物基本情况表中的建筑面积仅供参考,建筑面积以实际为准,表中面积与实际面积不一致的,租金和交易服务费不作调整。
二、竞租人应具备的资格条件
2.1.合法有效存续的法人、其他非法人组织或具有完全民事行为能力的自然人。
2.2.未被列入人民法院失信被执行人名单【报名截止日竞租人在福建省失信被执行人联合惩戒平台查询情况竞租人不存在失信记录;报名截止日竞租人在中国执行信息公开网(http://zxgk.court.gov.cn/)失信被执行人查询没有找到竞租人相关的结果】。
2.3.符合国家法律、行政法规规定的其他条件。
三、竞租人(承租方)应接受的主要租赁条件
3.1.竞租人在报名参与竞价前应对租赁标的物进行尽职调查,竞租人报名成功取得竞租资格即表明竞租人(承租方)已充分实际了解租赁标的物目前状况以及可能存在各类瑕疵、风险、安全隐患,已完全知悉并实际了解本租赁标的物未取得消防验收备案、未办理不动产权证,且可能无法取得消防验收备案、无法办理不动产权证的情况,经慎重考虑,自愿按现状承租本租赁标物的,并不以本租赁标的物上述瑕疵为由主张解除本乐动(中国)租赁合同或向出租方和交易机构主张任何权利,要求出租方和交易机构承担任何责任。
3.2.承租方承租本租赁标物的后,由承租方负责通过以包括但不限于向相关主管部门申请许可或办理相关手续以及加固、改造等方式使得租赁标的满足我国法律、法规、规章、政策中关于建筑规划、建筑物安全、建筑物期限、消防安全等相关规定的要求,并自行承担因租赁标的不满足我国法律、法规、规章、政策中关于建筑规划、建筑物安全、建筑物期限、消防安全等相关规定的要求而产生的全部经济法律责任,以及自行承担因租赁标的有可能被政府部门强制拆除而产生的全部经济法律责任(包括但不限于:若因上述原因被政府部门强制拆除,则由承租方承担拆除清理的所有费用等)。
3.3.承租方应依法自行向政府有关部门申请取得使用该租赁标的物所需的包括但不限于消防手续、验收许可和经营、环保等许可、报备或居住证等证照后方可营业;竞租人(承租方)应自行判断并承担本租赁标的物未取得消防验收备案、未办理不动产登记证可能导致如未获得相关许可、报备或证照造成的的所有经济和法律责任,出租方和交易机构不承担任何责任。
3.4.承租方需自行办理水、电立户。
3.5.未经出租方同意,承租方不得改变标的物外立面及门窗结构。
3.6.标的物已装修。出租方提供现有基础场地给承租方经营,不承担承租方任何经营风险和法律风险;如有装潢需求,由承租方自行承担提升软装及硬装部分的物资。
3.7.承租期间,如需对标的物进行改造,必须提交书面改造方案,经出租方书面同意后方可实施。所产生的设计费、装修费、水、电、气、电信、物业管理费等因改造所产生的一切费用由承租方承担;承租方自主经营、自负盈亏,接受出租方的监督和管理。
3.8.承租期间承租方经营活动所发生的水、电、气、电信、物业管理费等及因承租方使用的承租标的进行经营活动而产生的各种税费(包括治安卫生费、市政城管费、税费等),均由承租方承担。
3.9.承租期间,承租方须保持出租方提供的设施设备完好,负责标的物及其设施设备的日常保养、维护、修缮,如因使用期限已满自然损坏的设施,应由承租方及时上报出租方审定后报废,承租方不得擅自处理。
3.10.承租期间,承租标的物安全包括消防、治安安全、相关财产设备的消防、安全生产、环保、卫生及相关人员的劳动、人身安全等责任由承租方自行承担法律、经济责任,出租方不承担连带责任。发生上述安全事故造成的一切损失由承租方自行承担并赔偿。如造成出租方损失,承租方应负责赔偿。
3.11.承租方不得在标的餐厅内放置任何超过建筑物设计荷载范围的物品或其他可能影响标的物安全使用及导致安全隐患的物品(如易燃易爆物品等),不得发生随意改造线路等其他影响安全的情况。
3.12.承租方应当自行办妥使用标的物所需的相关手续及营业执照、卫生、环保、排放废水废气等合法合规开展经营应当办理的证件、核准或备案,自行解决使用过程中产生的纠纷及政府有关部门的处罚。
3.13.鉴于该标的物旅游地理位置的特殊性,承租方应遵守市场有关规定,受市场监管局等有关部门的监督与检查,配合有关工作。不得随意抬价或发生其他破坏市场规律的行为。如若收到相关部门处罚,承租方自行承担相应责任,经营过程,若因承租方责任影响出租方声誉及损失,出租方有权向承租方追偿。
3.14.租赁合同解除或终止时,承租场地的装璜、装修、扩建﹙扩增﹚的固定部分(含场地在承租前原有的和承租期间承租方建置、添置的)包括但不限于地板、门、窗、隔层、吊顶、水电气线路、水电气表﹙含增容部分﹚以及消防等设施、设备,承租方不得拆除,应当无偿移交给出租方,且出租方不予任何形式的补偿或赔偿。
3.15.未经出租方书面同意,承租方不得以任何形式转租、转让或转包(包括承租方内部关联方之间)。
3.16.每个报名竞租人都必须对该标的物实际情况(包括地理位置、房屋状况、目前经营情况等)做充分了解,确认该标的物能够符合自身经营需要。乐动(中国)成交后,如报名竞租人及承租方对实际情况不了解而产生任何纠纷均由报名竞租人及承租方自行承担,与出租方和交易机构、经纪机构无关。
3.17.承租方必须在竞价成交结果公示结束次日3个工作日与出租方签订《68海鲜码头餐厅租赁合同》,并于签订合同后的2个工作日向出租方缴纳履约保证金。否则,视同自动放弃承租权,出租方有权没收承租方的竞价保证金,并重新招租。
3.18.其他交易条件以本乐动(中国)竞价文件及其附件《68海鲜码头餐厅租赁合同》(范本)约定为准。
四、竞价方式:网络竞价、价高者得。
5.1.报名截止时间:2023年9月26日17时
5.2.竞租人资格:交纳竞价保证金和递交资格证明文件。只有在报名截止时间前向我中心完成交纳竞价保证金和递交资格证明文件手续,并通过资格审核的竞租人才具备竞租资格。
5.3.交纳竞价保证金
5.3.1.竞价保证金金额:20万元
5.3.2.竞价保证金指定银行账户:竞租人须在报名截止时间前以电子汇款的方式将竞价保证金汇达以下指定的银行账户【开户名称:乐动网页版登录入口,开户银行:交通银行福建省分行营业部,开户账号:351008010018150064161】。未按时交纳竞价保证金的不具备竞租人资格。
5.3.3.交纳竞价保证金:竞租人在“第四产权平台(http://www.dscq.com)”提交报名成功之后,系统会自动生成一个8位识别码,转款时将识别码正确填写在【备注】【汇款用途】、【摘要】、【附言】等栏内,即可自动匹配到竞租人的账户。竞租人可在柜台、使用网银、手机转账,请勿使用ATM机转账。工行柜台转账仅能将识别码填写在【附言】中,不能填写在【摘要】中,其他银行正常转账即可。
5.4.递交资格证明文件
意向方须在乐动网页版登录入口期限内向我中心领取《竞价文件》,并按《竞价文件》的规定在报名截止时间前递交资格证明文件。
5.5.领取竞价文件
5.5.1.单位经办人员持本人身份证复印件(加盖公章)和企业营业执照复印件(加盖公章),自然人持本人身份证复印件领取本乐动(中国)竞价文件。
5.5.2.意向方可按照将上述相关证照、联系方式及需要领取竞价文件的乐动(中国)名称发送到以下邮箱:jyeb@fjcqjy.com的方式领取竞价文件。意向方发送邮件前、后须按下列联系方式与我中心经办人员取得联系。意向方发送邮件即视为意向方认可我中心按照意向方邮件地址及邮件中的联系方式发(寄)送本乐动(中国)有关的各类通知、要求以及法律文件。
5.6.特别提示:所有(或仅有一名)资格审核合格的竞租人参加网络竞价,但全程均不报(应)价,其交纳的竞价保证金不予返还,将按照本乐动(中国)竞价文件的规定进行处置。
六、乐动网页版登录入口期限:2023年9月13日至2023年9月26日(若在此期间未征集到竞租人,则以每5个工作日为一个周期顺延至2024年9月2日,顺延期间征集到竞租人即告终止或另行乐动网页版登录入口)。
七、网络竞价开始时间:2023年9月27日9时
八、联系方式
电话:0591-87838902、86160106;监督电话:0591-87810363
地址:福州市湖东路中山大厦A座22层、
平潭综合实验区金井湾商务营运中心6号楼5层