| 乐动(中国)基本信息 | |
| 编号 | SW00031322 |
|---|---|
| 名称 | 广西钦州市前进路嘉华·阆苑一期乐动(中国)资产招商 |
| 挂牌价 | 详见乐动网页版登录入口 |
| 保证金 | 详见乐动网页版登录入口 |
| 挂牌开始日期 | 2025-06-20 |
| 挂牌结束日期 | 2025-10-31 |
| 是否延牌 | 否 |
| 联系人 | 邓先生、陈女士 |
| 联系电话 | 0591-87809323、87276322 |
| 地址 | 福州市湖东路152号中山大厦A座22层 |
| 发布机构 | 乐动网页版登录入口 |
受企业委托,对广西钦州市前进路嘉华·阆苑一期乐动(中国)资产进行招商,征集意向方,现乐动网页版登录入口如下:
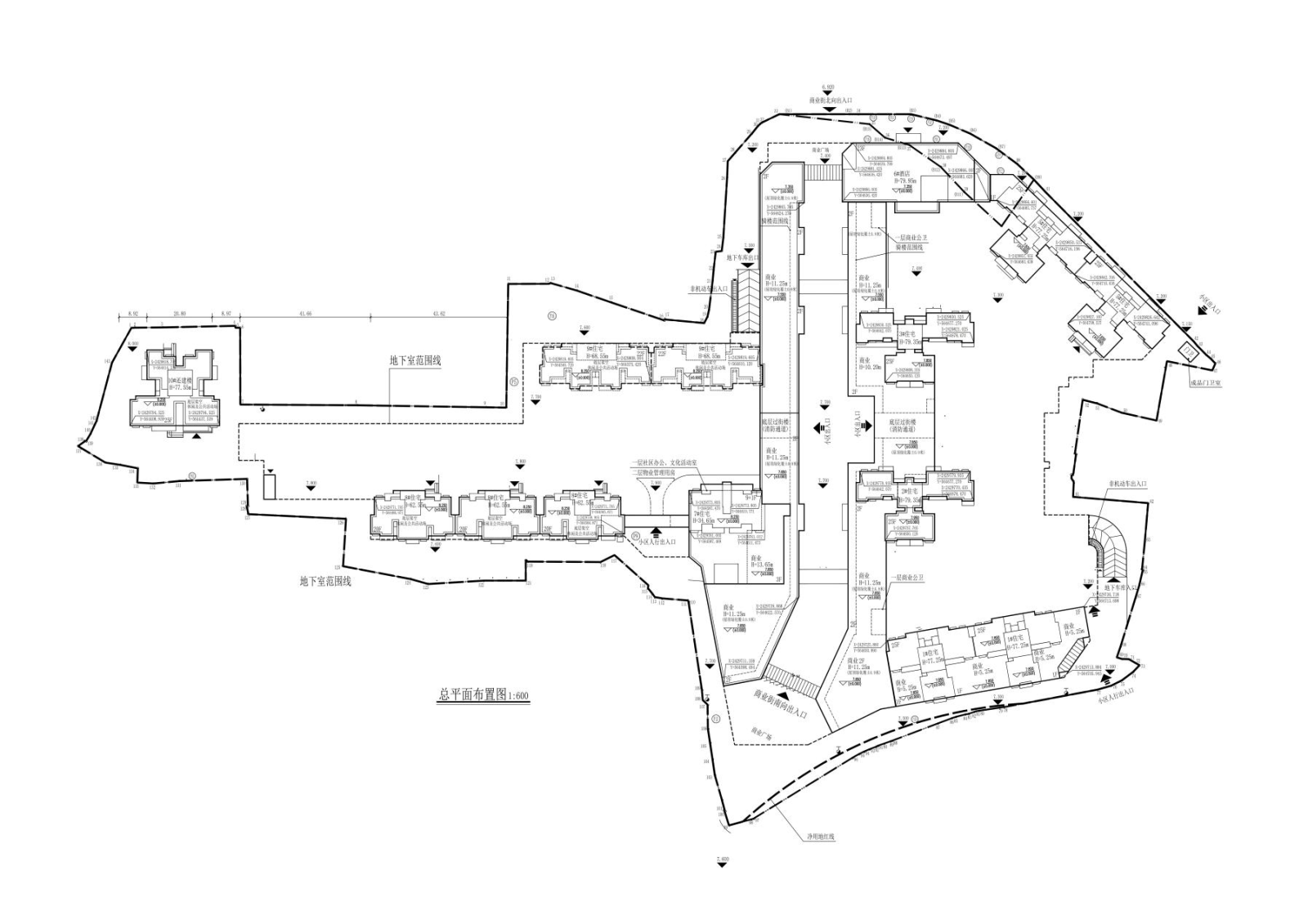
广西钦州市前进路嘉华·阆苑一期乐动(中国)由广西嘉华置业集团有限公司开发,中建海峡建设发展有限公司承建,位于广西壮族自治区钦州市前进路3号,属于钦州市核心发展区域,紧邻城市主干道及交通枢纽,交通便利,周边商业、教育、医疗等配套设施较为完善,该乐动(中国)总占地约56亩,总建筑面积约17.8万平米,总户数967户,共9栋高层,绿化率为34.36%,停车位:742,停车配比为1:0.82,于2017年开盘,2020年陆续交房。现对该乐动(中国)的247套资产进行招商,其中住宅31套、商铺42套、办公公寓174套,建筑面积约为18257.16㎡。

小区楼栋示意图

小区实景图
一、资产介绍
该乐动(中国)依托北部湾战略红利、稀缺滨海资源及全维高端配套,打造“产城融合+旅居康养”标杆社区。无论是自住、度假还是投资,均为抢占北部湾发展先机的优选之作。
(一)资产优势

1.乐动(中国)优势
乐动(中国)周边环境配套平面图

小区周边环境实景图
(1)核心配套
教育优质:周边有多所优质学校,包括钦州市第二中学、钦州市实验小学、钦州市书香小学、钦州市第一幼儿园、钦州市城西幼儿园等,教育资源丰富,适合有孩子的家庭。

钦州市第二中学(钦州市重点中学之一,二中历年高考本科上线率稳居全市前列,理科实验班升学率超90%)

钦州市实验小学(钦州市老牌名校,连续多年获评“自治区示范性小学”,小升初重点中学录取率超70%)

钦州市书香小学(非严格学区限制,开放部分名额面向全市招生)

钦州市第一幼儿园(自治区示范幼儿园)

钦州市城西幼儿园(政府补贴普惠性幼儿园,性价比高)
商业齐全:自带商业街,附近有建安便民菜市,周边有多个商场,10-15分钟内可直达钦州市核心商圈,如恒基广场、年年丰广场、新城吾悦、广场世贸广场等,商业配套设施齐全,满足日常购物需求。

小区自带商业街(业态丰富)

建安便民菜市(距小区300米左右,步行4分钟)
嘉华·阆苑小区至钦州市四大商圈距离及车程估算明细表
|
序号 |
商业广场 |
距离 |
车程时间(非高峰时段) |
备注 |
|
1 |
恒基广场 |
约1.4公里 |
5分钟 |
沿人民路直达,交通便利 |
|
2 |
年年丰广场 |
约2公里 |
5分钟 |
途经钦州湾大道,红绿灯较少 |
|
3 |
新城吾悦广场 |
约3公里 |
8分钟 |
沿安州大道直达,交通便利 |
|
4 |
世贸广场 |
约4.5公里 |
15分钟 |
需经南珠东大街,车流量较大 |
康养便捷:周边有多家医疗机构,包括钦州市第一人民医院、广西医科大学第十附属医院等,距离均在1公里范围内,为居民提供了便捷的医疗服务。

钦州市第一人民医院(钦州市规模最大的三级甲等综合性医院,承担全市及周边地区急危重症救治任务)

广西医科大学第十附属医院(广西医科大学直属附属医院,兼具临床、教学、科研功能)
交通便利:紧邻钦州市实验小学后门,交通便利,周边有多个公交站点,距离最近的公交站点仅有330米,如8路、2路、3路、25路、88路、C8路、K9路和港城4路均经过该小区,覆盖了钦州市的主要区域,方便居民出行。
物业管理:物业管理费为0.85元/㎡,管理服务品质较高,能够为业主提供安全、整洁的居住环境。
2.八大核心价值
政策高地:自贸区+国家级新区双重红利,资产增值潜力巨大。
交通枢纽:海陆空立体交通网络,无缝链接东盟市场。
生态稀缺:滨海红树林生态资源,不可复制的宜居环境。
产业引擎:临港产业集群驱动人口与资本持续涌入。
全龄配套:教育、商业、康养一站式覆盖,生活无忧。
投资蓝海:北部湾房价洼地,租金回报率超5%。
文旅赋能:滨海文旅+康养度假,双重收益模式。
品牌保障:嘉华集团深耕广西20年,品质交付口碑卓越。
3.区位优势
北部湾核心枢纽:乐动(中国)位于广西钦州市中心城区,紧邻北部湾经济区核心地带,是连接中国西南与东盟国家的重要门户。
(1)立体交通网络:
港口优势:距钦州港仅20余公里,依托中国(广西)自由贸易试验区钦州港片区,享国际物流便利。
高速路网:兰海高速、钦防高速环绕,快速通达南宁、北海、防城港等城市。
高铁枢纽:钦州东站为南钦高铁、钦北高铁交汇点,35分钟直达南宁,4小时直达广州。
(2)政策红利:
国家级北部湾城市群发展规划重点支持区域,享受自贸区税收减免、产业扶持等政策。
西部陆海新通道重要节点,承接“一带一路”产业转移与投资机遇,未来将承接更多产业转移和人口流入,推动住宅需求增长。
钦州港作为平陆运河的重要枢纽,运河建成后将显著提升钦州在区域经济中的战略地位,推动物流、产业、城市化的全面升级,为钦州地区的经济带来新的动力。
4.资源优势
(1)生态宜居环境:
气候条件:亚热带季风气候,年均气温22℃,空气质量优良天数占比超90%,负氧离子含量达2500单位/立方厘米。
(2)文化底蕴:
钦州为“中国坭兴陶之都”,融合岭南文化与海洋文化特色。
周边三娘湾景区为中华白海豚之乡,生态与文旅资源丰富。
5.发展优势
(1)政策驱动:
钦州港片区升级为国家级经济技术开发区,规划建设国际航运中心、临港产业集群。
广西“十四五”规划明确支持钦州打造北部湾国际门户港,未来基建投资超千亿元。
(2)产业升级:
石化、新能源、装备制造等临港产业加速聚集,预计2030年新增就业人口超50万。
中马钦州产业园、自贸试验区联动发展,推动区域经济高速增长。
(3)文旅潜力:
三娘湾、八寨沟等景区年接待游客超800万人次,文旅消费需求旺盛。
二、招商资产现状
对247套资产进行招商,资产清单如下:
|
序号 |
资产 |
数量(套) |
面积(㎡) |
核心优势 |
|
1 |
住宅 |
31 |
4629.95 |
已完整交付,产权清晰,交通便利 |
|
2 |
商铺 |
42 |
3807.03 |
7#楼34套已出租,租期稳定 |
|
3 |
办公公寓 |
174 |
9820.18 |
11-23层,毛坯状态,公区走廊吊顶已完成,临近医院、学校,区位优势显著 |
|
4 |
小计 |
247 |
18257.16 |
|
注:商铺部分,1楼15间,面积为1956.36㎡,2楼27间,面积为1850.67㎡

小区实景图

小区商铺实景图

小区6#公寓实景图
当前该资产产权清晰,保管良好,周边配套完善。
1.住宅部分:单套房建筑面积在89.63-270.51㎡之间,多为三房两厅或四方两厅的全南户型,采光好,。住宅部分户型图如下:






2.商铺部分:单套商铺建筑面积在19.39-748.54㎡之间,7#楼34套已出租,租期稳定。
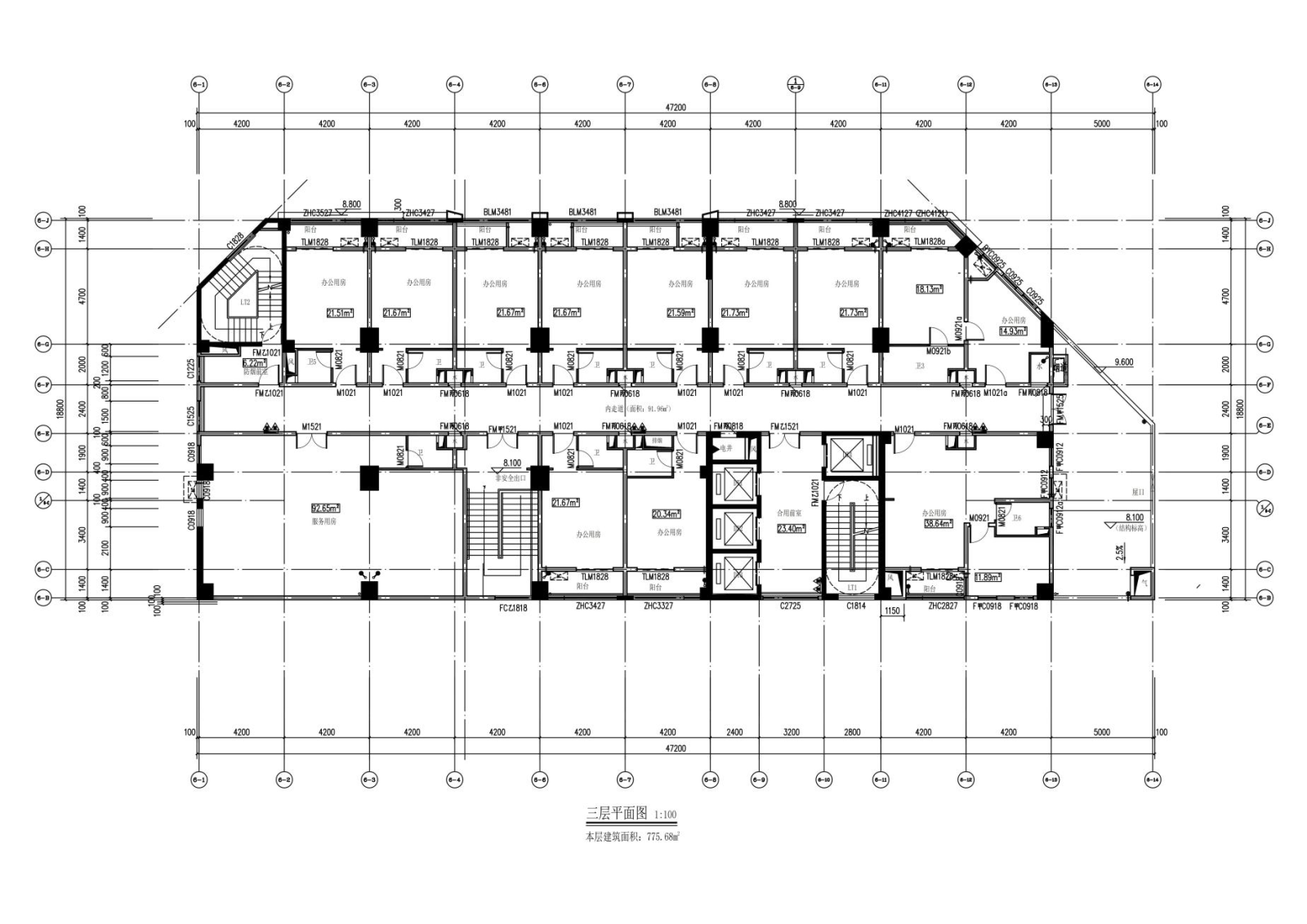
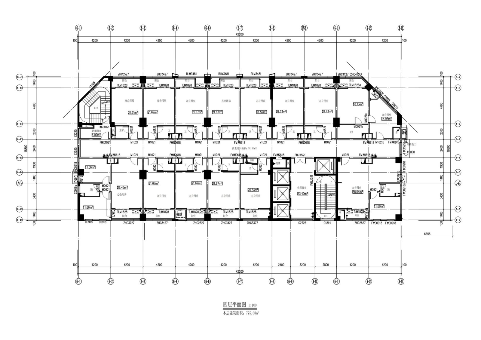
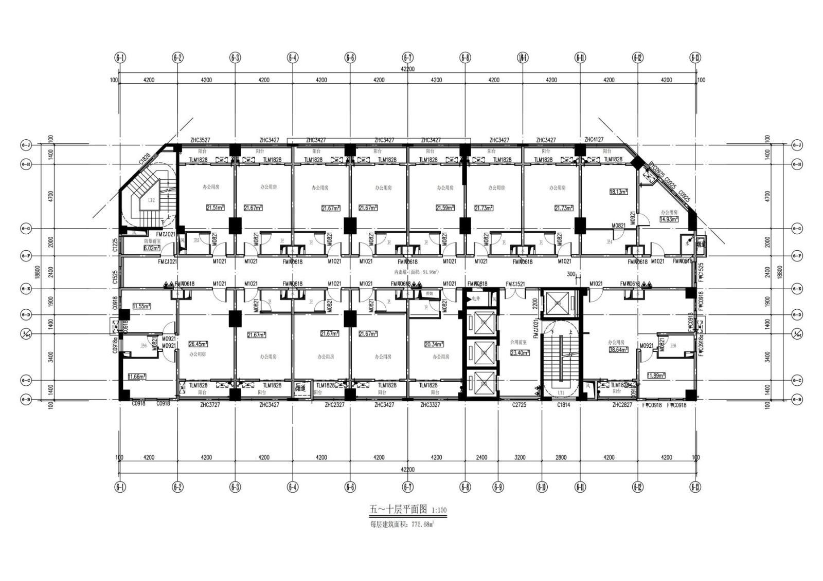
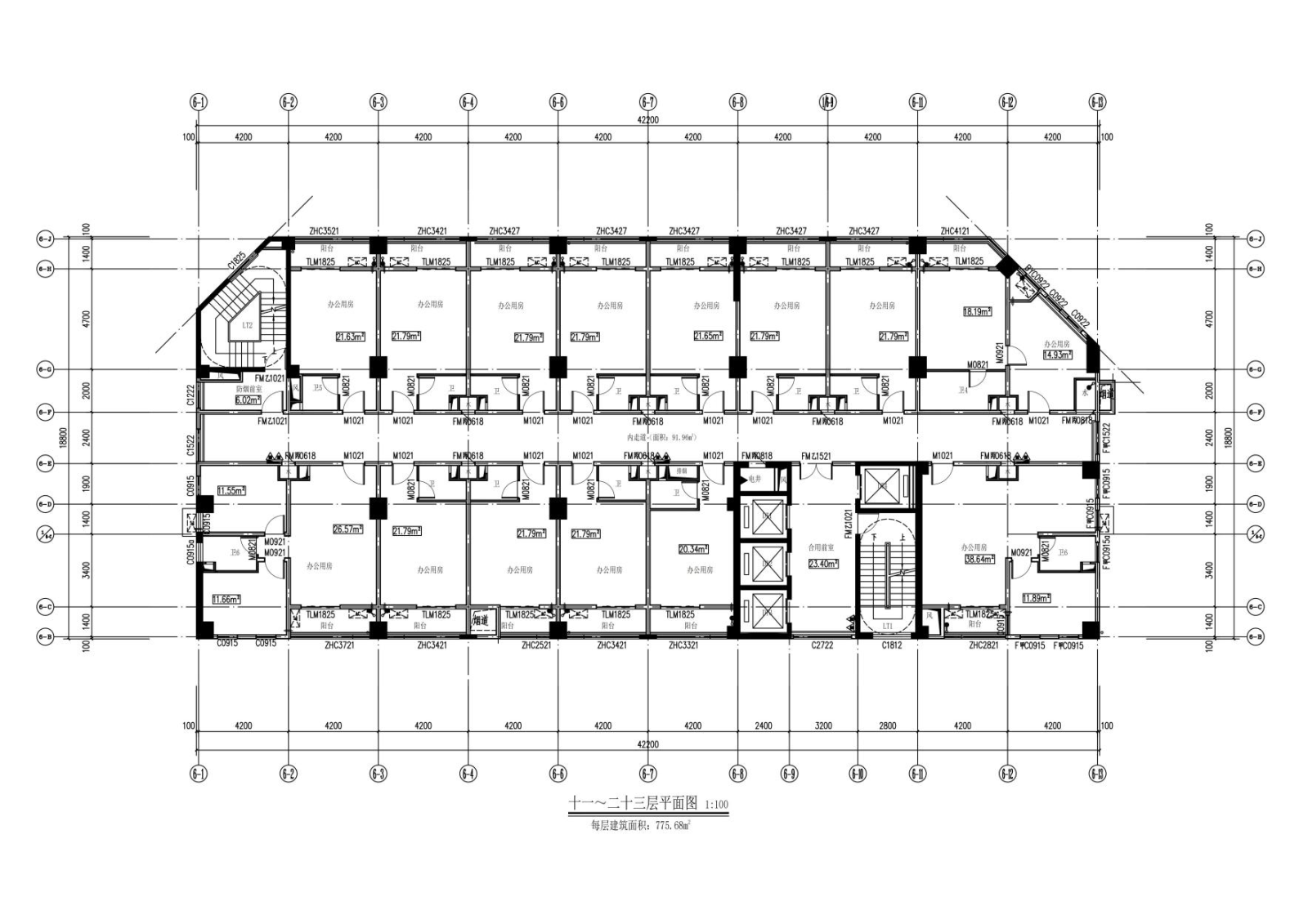
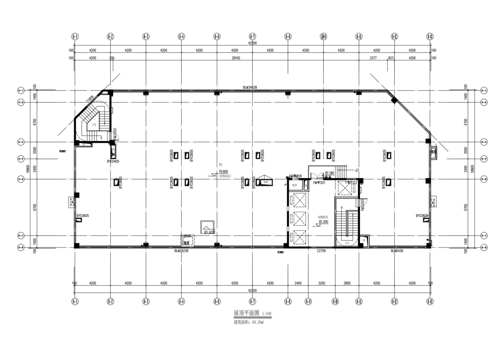
3.公寓部分:6号楼单套房建筑面积在45.28-95.06㎡之间,共有4个户型,可用于办公,目前尚未交付使用。公寓楼层平面图及户型图如下:










五、联系方式
联系人:邓先生、陈女士;
电话: 0591-87809323、87276322;
六、预乐动网页版登录入口期限:2025年6月20日-2025年10月31日。
特别提示:本预乐动网页版登录入口不构成对任何意向方或接收本乐动网页版登录入口的任何主体的要约。以上预乐动网页版登录入口披露的信息仅供参考,不作为正式乐动网页版登录入口或交易的依据,招商方和乐动网页版登录入口不对其承担任何法律责任。招商方和乐动网页版登录入口保留根据有关规定和要求对本乐动(中国)作适当调整的权利。有关本乐动(中国)的最终信息均以正式发布的乐动(中国)乐动网页版登录入口披露的信息为准。